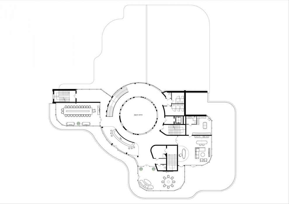
Наш новый проект – конгресс-центр, который расположен под Киевом и выполнен в стиле неоэкспрессионизма. Наша цель заключалась в том, чтобы слить дом с природой и создать гармонию между архитектурой и окружающей средой.
Форма и материалы, которые мы использовали, тщательно подобраны для того, чтобы дом стал частью природы. Мы делали акцент на темном дереве, повторяющем цвет и форму окружающих деревьев. Это придает зданию органичность и обеспечивает его гармоническое влияние на окружающую природу.
Кроме того, мы использовали стекло, отражающее лес и позволяющее зданию слиться с окружающими во время взаимодействия со светом.
Также в наш конгресс-центр мы добавили элемент гофрированного металла под бронзовый цвет. Это придает зданию изюминку и создает впечатляющий вид.
Окончательным штрихом для создания образа является озеленение с сухостоем на крыше. Это завершает концепцию слияния с природой и подчеркивает наш подход к созданию архитектурных решений.